TALONÄYTTELY torstaina 12.03.2026 klo 17.00-19.00
TALONÄYTTELY To 12.03.2026 Oulussa Ritaharjussa osoitteessa Jäniskoirantie 8 90540 Oulu.
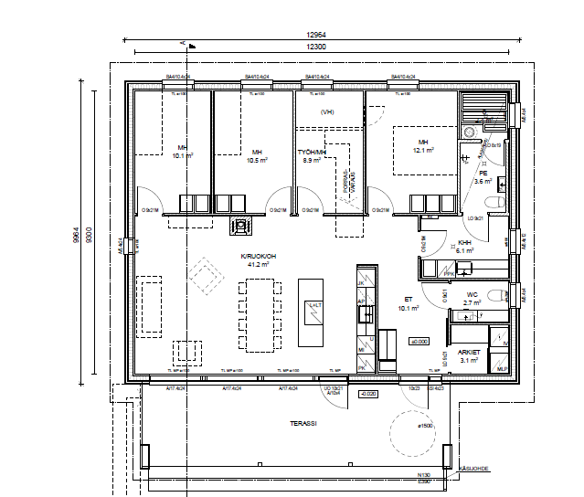
Esittelemme muuttovalmiiksi rakennetun tyylikkään ja toimivan neljän makuuhuoneen 1-kerroskodin.
Tervetuloa tutustumaan ja ihastumaan laadukkaaseen rakentamiseemme ja keskustelemaan tarjoamistamme vaihtoehdoista teidän toiveisiinne.
Lisätietoja puh. 050 352 6641.


